Scan to BIM

BIM Modellierung

Punktwolken in intelligente Building Information Models umwandeln. Präzise Revit-Modelle von LOD 100 bis LOD 500 für Sanierung, Facility Management und Baukoordination.

Scan to BIM

Von der Punktwolke zum Modell

Wir erstellen aus 3D-Laserscandaten präzise BIM-Modelle in Autodesk Revit. Jedes Element wird exakt nach der Punktwolke modelliert – Wände, Decken, Türen, Fenster, Treppen und alle TGA-Komponenten.

Das Ergebnis ist ein intelligentes, parametrisches Gebäudemodell, das als zuverlässige Planungsgrundlage für alle weiteren Projektphasen dient.

Hotel Daxstein - BIM-Modell
Hotel Daxstein - Punktwolke
Punktwolke BIM-Modell
Pläne

Vom Modell zum präzisen Plan

Aus dem BIM-Modell generieren wir maßgenaue 2D-Pläne – Grundrisse, Schnitte, Ansichten und Detailzeichnungen. Jedes Blatt wird projektspezifisch aufbereitet und ist direkt einsetzbar für Planung, Genehmigung und Ausführung.

  • Grundrisse aller Geschosse
  • Schnitte & Ansichten
  • 3D-Isometrien
  • Druckfertig als PDF & DWG
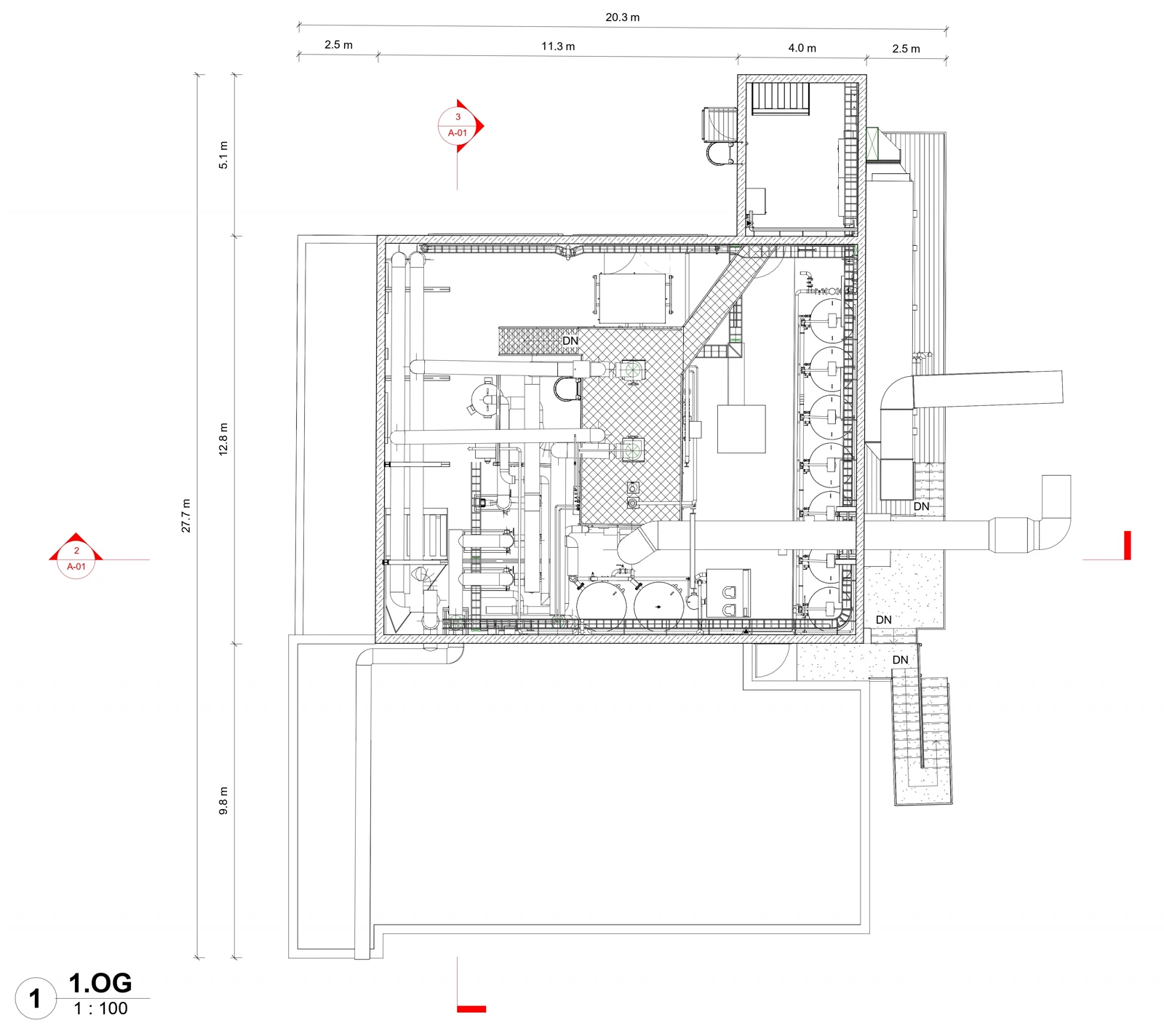
SALK Energiezentrale – Grundriss 1.OG Grundriss 1.OG
3D-Isometrie – SALK Energiezentrale 3D-Ansicht
Schnitt A-A′ – Gebäudequerschnitt Schnitt A-A′
Schnitt B-B′ – Gebäudequerschnitt Schnitt B-B′
Ansicht Ost – Fassadenansicht Ansicht Ost
Ansicht Nord – Fassadenansicht Ansicht Nord
Level of Development

LOD 100 bis LOD 400

Wir liefern BIM-Modelle im Detaillierungsgrad, den Ihr Projekt erfordert – von der konzeptionellen Masse bis zur baureifen Dokumentation.

LOD 100
LOD 100 Konzeptionell

Grundlegende Gebäudemasse und Gesamtform. Geeignet für frühe Entwurfsstudien und Raumplanung.

  • Gebäudehülle
  • Geschossdecken
  • Hauptvolumen
LOD 200
LOD 200 Schematisch

Generische Platzhalter mit ungefährer Größe, Form und Position. Ideal für die Entwurfsentwicklung.

  • Wände & Trennwände
  • Türen & Fenster
  • Treppen & Rampen
LOD 400
LOD 400 Ausführung

Fertigungsreife Detaillierung mit Montageinformationen. Geeignet für Werkplanung und Vorfertigung.

  • Fertigungsdetails
  • Montagesequenzen
  • Installationshinweise
Fachbereiche

Was wir modellieren

Lieferobjekte

Was Sie erhalten

BIM-Modelle & Daten

Vollständig modellierte Revit-Projekte mit verknüpften Punktwolken – bereit für Planung, Koordination und Facility Management.

  • Revit-Modelle (.rvt)
  • IFC-Dateien für offenen Datenaustausch
  • Navisworks für Koordination
  • Verknüpfte Punktwolken (RCP/E57)
BIM-Modell Außenansicht LOD 400

Pläne & Dokumentation

Aus dem BIM-Modell abgeleitete 2D-Pläne und Berichte – druckfertig und editierbar.

  • Grundrisse, Schnitte, Ansichten (DWG/PDF)
  • Detailzeichnungen & Aufmaßpläne
  • Mengenermittlung & Bauteilinformationen
  • Projektdokumentation
BIM Grundrissplan
Projektvideo

BIM Modellierung in Aktion

BIM Modellierung – Projekt 1

BIM Modellierung – Projektübersicht

AKH Projekt – BIM Workflow

Scan to BIM – Ergebnis

Ebene 01 – BT10 Modell

Haus Serbien – 1:1 BIM

BIM Modellierung – Live

Ergebnisse

BIM Modelle

BIM Modellierung für Ihr Projekt?

Lassen Sie uns Ihre Scan-to-BIM Anforderungen besprechen und den richtigen LOD für Ihr Projekt bestimmen.

Angebot anfragen